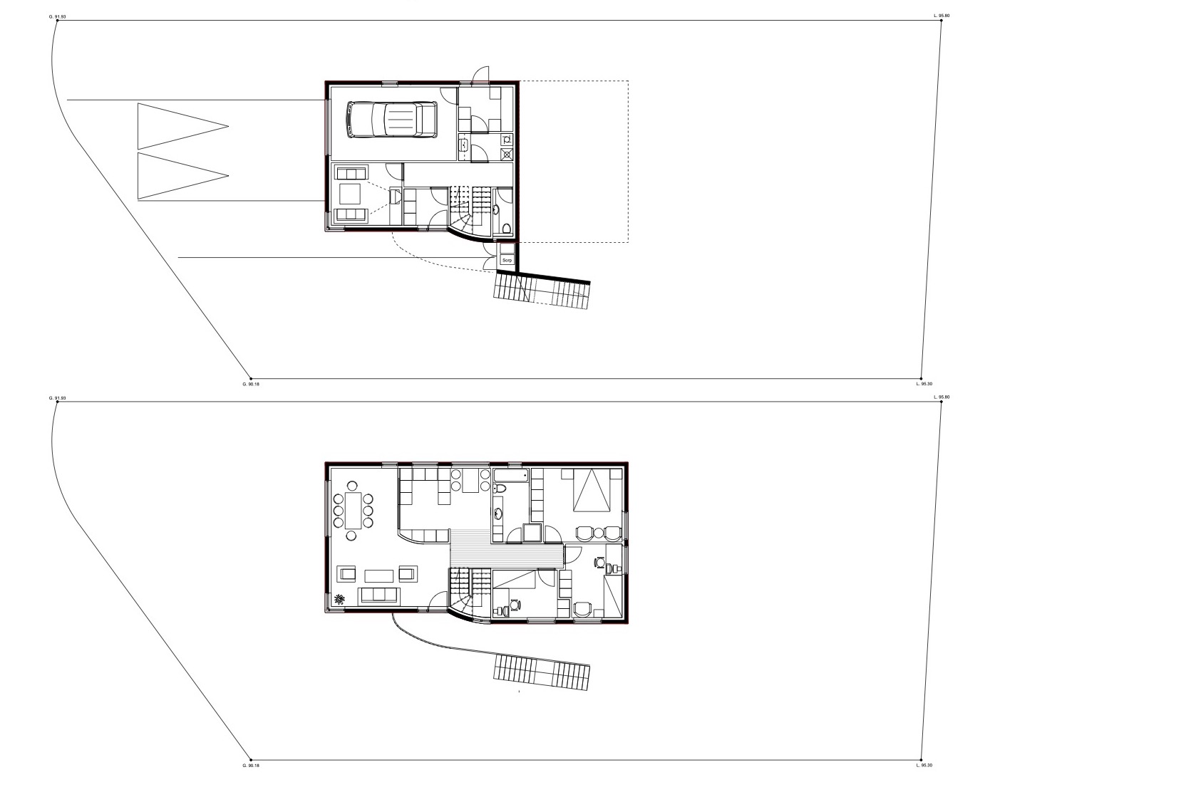
Ólafsgeisli 81

Ólafsgeisli 81. Einbýlishús

Teiknað fyrir :

Snorri Guðjónsson og fjölskylda

Ár:

2000